Studio/Ufficio in Affitto a Padova
.
Zona: ZONA INDUSTRIALE-EST
Descrizione immobile
Padova - ZONA INDUSTRIALE - Ufficio in LOCAZIONE inserito in un moderno palazzo dal design dinamico le cui vetrate offrono luce e profondità.
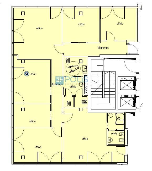
L'ufficio è inserito in una nuova struttura direzionale dagli elevati standard energetici, 180 mq commerciali suddivisi da funzionali pareti, ingresso/reception, 6 ampi uffici, sala riunione, quattro bagni con antibagno, due comodi posti auto.
L'esclusivo ufficio, nella zona commerciale/industriale di Padova Est, è servito dai principali mezzi di trasporto pubblici e dalle principali vie di comunicazione stradali e autostradali. Contattare Polis Real Estate Telefono 049 773406 - info@polisimmobiliare.com - RIF. 1626
Informazioni immobile
Codice: 1626
Contratto: Affitto
Tipologia: Studio/Ufficio
Regione: Veneto
Provincia: Padova
Comune: Padova
Zona: ZONA INDUSTRIALE-EST
Prezzo: € 2.000
Totale mq: 180 mq
Bagni: 4
Locali: 7
Stato conservazione: Ottimo
Riscaldamento: Centralizzato
Posizione: Zona industriale
Caratteristiche
Aria condizionata:
Bagni: a Norma
Nelle vicinanze
Palestre
Centri Benessere
Campi da Calcio
Complessi Sportivi
Campi da Tennis
Piste Ciclabili
Parchi Giochi
Stazione Ferroviaria
Trasporti Pubblici
Asilo
Scuole Elementari
Scuole Medie
Scuole Superiori
Bar
Uffici postali
Centri commerciali
Uffici comunali
Mappa immobile














