Studio/Ufficio in Affitto a Torri di Quartesolo
Classe energetica
EP glnr: 203.82 kwh/m²
IPe: 27.74 kwh/m³
VICENZA - Prestigioso UFFICIO IN LOCAZIONE ubicato all'ULTIMO PIANO dell'esclusiva TORRE del complesso Vicenza Business Tower, zona direzionale / commerciale di Torri di Quartesolo denominata "Le Piramidi.
L'immobile viene ceduto arredato e suddiviso da pareti in vetro.
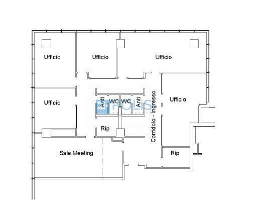
L'ufficio di 265 mq è composto da ingresso con reception, sei locali ufficio, due servizi con antibagno e un ripostiglio.
La struttura si compone di elementi architettonici in vetro e metallo, gli AMBIENTI MODERNI DAL DESIGN DINAMICO comunicano con l'esterno grazie alle grandi vetrate che sono delle vere e proprie trasparenze.
L'ufficio in Affitto a Vicenza è servito dai principali mezzi di trasporto pubblici e dalle principali vie di comunicazione stradali e autostradali. RIF. 1662












