Studio/Ufficio in Affitto a Padova
Zona: ZONA INDUSTRIALE-EST
Padova – ZONA INDUSTRIALE – Ufficio in locazione, completamente ristrutturato e inserito in un moderno palazzo dal design contemporaneo, caratterizzato da ampie vetrate che offrono luminosità e profondità, dotato di ascensore.
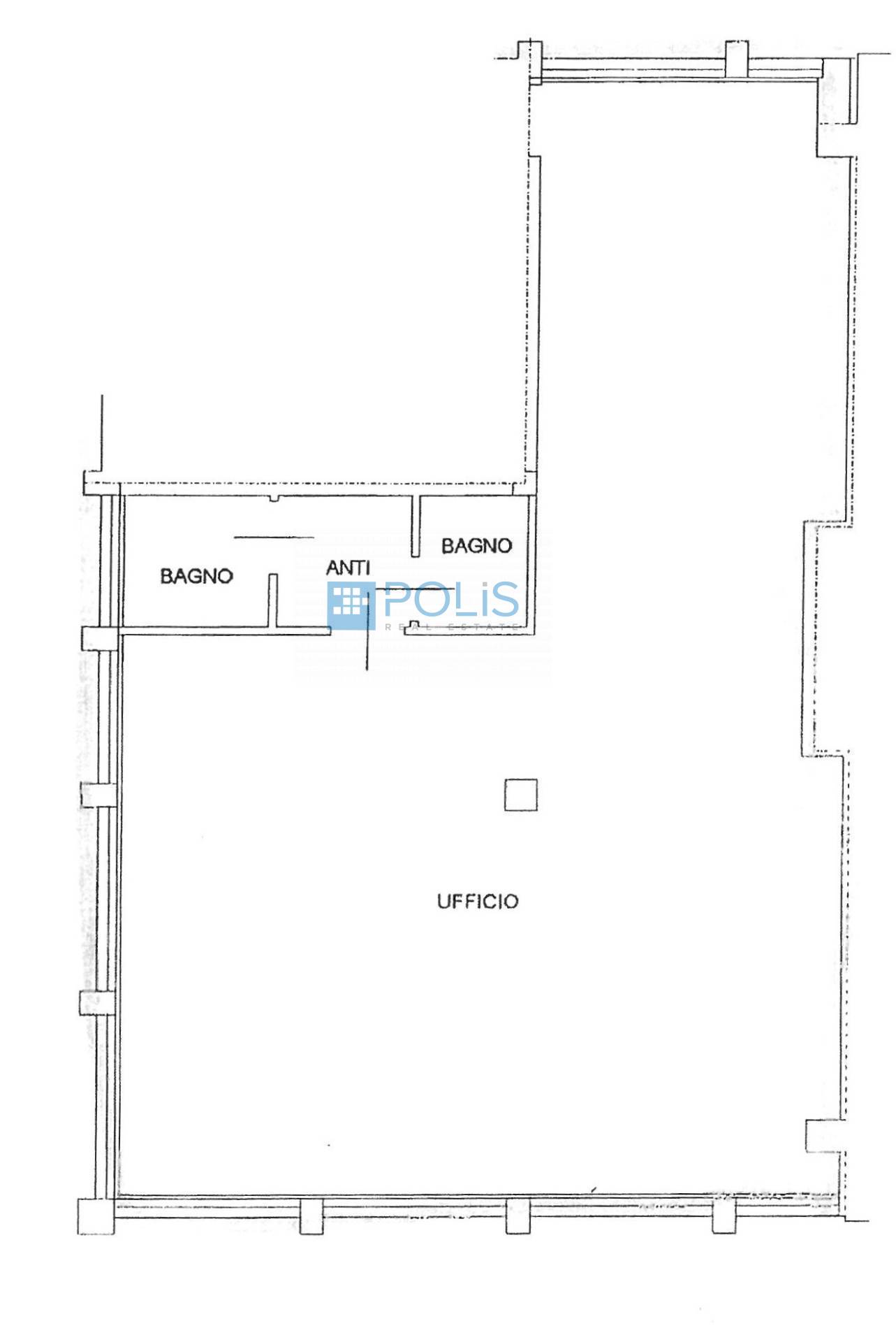
L’ufficio si trova in una nuova struttura direzionale ad elevati standard energetici: 130 mq commerciali in open space, facilmente suddivisibili, con pavimenti flottanti in marmo, controsoffitto e due bagni con antibagno.
Impianti di riscaldamento e condizionamento autonomi. Tre posti auto inclusi nella locazione.
Questo esclusivo ufficio, situato nella zona commerciale/industriale di Padova Est, è servito dai principali mezzi pubblici e dalle più importanti vie di comunicazione stradali e autostradali.
Contattare Polis Real Estate Telefono 049 773406 - info@polisimmobiliare.com - RIF. 1677













